Mesa Point PUD
Project Mission
- Creates Neighborhoods that Benefit and Enhance Cedaredge
- Provides a Variety of Housing Types
- 248 Duplex Units, 113 Single Family and
60 Fourplex Units - Mixed-Use District with Lodging and
Hospitality Amenities - Four Phases – Developed Over the Next 20 Years
- Maintains Similar Growth Patterns of the
Last 20 Years
- Supply Housing that Crosses the Spectrum of Lifecycle
- Expands Choice and Affordability
- Provides Downsizing Options
- Increases Economic Foundation & Prosperity
- Helps Cedaredge Golf Course Become
Self-Supporting - Provides High Paying Jobs
- Benefits Existing Businesses
- Enhances Entrepreneurial Opportunities
- Helps Cedaredge Golf Course Become
- Implements Smart, Planned Growth on the Western Slope
- Focuses on Long Term Sustainability – Plan for
the Next 40 Years - Locates Housing on Non-Agricultural Land
- Helps Retain the Rural Character of Delta County
by Concentrating Growth in Town, Not on AG
Land - Positions Housing in Town Limits Where Existing
Infrastructure and Services Exist - Generates $5.1 Million in Cedaredge Water &
Sewer Tap Fees - Brings in Over $2 Million in Town Sales Tax From
Construction Materials Alone
- Focuses on Long Term Sustainability – Plan for
- Completes the Vision Established in 1989 Development Agreement
- 1990 – Cedaredge Trustees Annexed this
property into town for Housing, Resort &
Commercial Use in Exchange for:
▪ Tremendous Water Resources
▪ Land for Golf Course
▪ Surface Creek Trail
- 1990 – Cedaredge Trustees Annexed this
- This Project
- Fulfills the Agreement that Entitled this
Land for Multi-Use Development in 1990 - Allows for Smart, Responsible Growth
- Provides Significant Benefits to Cedaredge
and Delta County
- Fulfills the Agreement that Entitled this



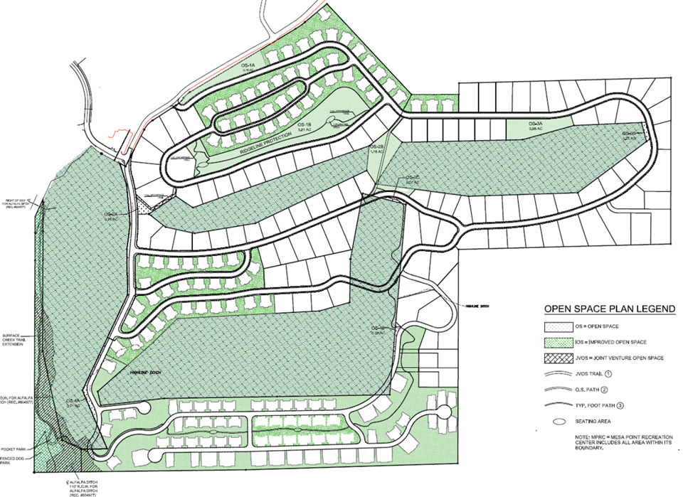
Mesa Point Proposed Amenities
- Mixed Use Overlay – Phase 4
- Condo/Hotel to Improve Lodging Access with Outdoor Courts and Pool
- Public Trail system
- Hiking Trail
- Mellow Meandering Trail
- Surface Creek Trail Extension
- Continuous Sidewalks Along All Streets to Connect Trail System
Project Benefits



Common Questions & Concerns
Is there enough water?

Water Rights Gained With the Land During Annexation

How much will the homes cost?
- $395k Multi-Family (4 Plex)
- $450k-$550k Townhome
- $650k – $1.1m Single Family
How long will the Project take?
- 4 Phases over 15-20 Years
- Each Phase 3 to 5 Years
- Phase 1 to 3 Average 16 – 22 New Homes per Year



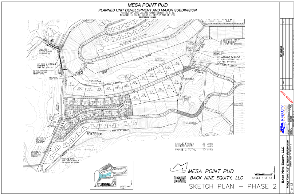
Mesa Point Sketch Plan













